Нижегородская фирма «Волга-Трейд» разработала автодом на базе полноприводного шестиколёсного грузовика КамАЗ-43118. Жилой модуль вмещает четырех человек и рассчитан на длительную экспедицию. Стоимость автодома — 27 377 000 рублей. Сам дом без приставки «авто» приобрести тоже можно. Без шасси он обойдётся в 14 689 000 рублей.

Автодом имеет всё необходимое для комфортного проживания. В нём есть раздельные санузел и душевая, двуспальная кровать, кухонная зона и обеденная с диванчиками. Стены, потолок и диванная группа обтянуты приятной тканью.

Автодом поставляется со всем необходимым. Тарелки, бокалы, сковородки, кастрюли — всё это уже есть в доме, и более того, имеет свое место с креплением предметов по размеру
Автодом поставляется со всем необходимым. Тарелки, бокалы, сковородки, кастрюли — всё это уже есть в доме, и более того, имеет свое место с креплением предметов по размеру
До сих пор не на каждой российской кухне можно увидеть посудомойку, но в автодоме для неё нашлось место. Также место нашлось для холодильника и отдельной морозильной камеры, СВЧ-печи и кофемашины
До сих пор не на каждой российской кухне можно увидеть посудомойку, но в автодоме для неё нашлось место. Также место нашлось для холодильника и отдельной морозильной камеры, СВЧ-печи и кофемашины

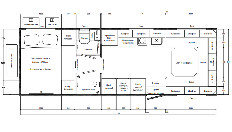
Размеры «дома на колесах»: ширина — 2,4 м, высота — 2 метра, внутренняя длина отсека — 7,2 метра.

Подробная схема автодома. На ней видно, что стол в планировке — трансформер. Производитель указывает 4 спальных места, и, видимо, это как раз та зона, что сможет обеспечить после трансформации ещё двум людям пространство для горизонтального отдыха
Подробная схема автодома. На ней видно, что стол в планировке — трансформер. Производитель указывает 4 спальных места, и, видимо, это как раз та зона, что сможет обеспечить после трансформации ещё двум людям пространство для горизонтального отдыха
Кухонная зона оборудована большим количеством встроенных шкафчиков во всю стену для удобного хранения
Кухонная зона оборудована большим количеством встроенных шкафчиков во всю стену для удобного хранения

Ранее www1.ru писал о том, что президент России Владимир Путин и его пресс-секретарь Дмитрий Песков проехались по чукотской земле на снегоболотоходе «Хищник». За отдельную плату их можно оборудовать спальными местами аж для 6 человек, но на долгие путешествия они не рассчитаны.

Источники
Волгатрейд

Сейчас на главной

Проблема ремонта ледокола вынудила Архангельскую верфь срочно менять оборудование
1 час назад
Проблема ремонта ледокола вынудила Архангельскую верфь срочно менять оборудование

Предприятие модернизировали ради «Авраамия Завенягина» проекта 1191

Новости Транспорт Промышленность
Максим Борисов
Турбовинтовым Ил-114-300 предложили огромный рынок сбыта
1 час назад
Турбовинтовым Ил-114-300 предложили огромный рынок сбыта

Аналитик Степанов заявил, что самолёт станет востребован в Африке

Новости Авиация
Максим Борисов
Авиабомбы ФАБ-500Т для Су-34 и Су-35С серьёзно модернизировали
1 час назад
Авиабомбы ФАБ-500Т для Су-34 и Су-35С серьёзно модернизировали

Боеприпасы с УМПК образца 2025 года получили радиовысотомеры

Новости Военная техника
Максим Борисов
Пилоты Су24М и Су-30СМ2 уничтожили командные пункты условного противника бомбами ОФАБ-250-270
1 час назад
Пилоты Су24М и Су-30СМ2 уничтожили командные пункты условного противника бомбами ОФАБ-250-270

Учебно-тренировочные полёты прошли в Калининградской области

Новости Военная техника Минобороны РФ
Юлия Шелковенко
Новейшие БРЭМ-80 на базе газотурбинного танка Т-80 передали военным
1 час назад
Новейшие БРЭМ-80 на базе газотурбинного танка Т-80 передали военным

Защищённость экипажа резко увеличили после модернизации

Новости Военная техника ГК «Ростех»
Максим Борисов
Эффект от применения БПЛА сопоставим с артиллерией — Генштаб ВС России
1 час назад
Эффект от применения БПЛА сопоставим с артиллерией — Генштаб ВС России

Генерал-полковник Рудской: Значительная часть потерь противника приходится на FPV-дроны

Новости Военная техника Генштаб ВС России
Юлия Шелковенко
Новые модификации VTOL-беспилотников «Око-2» и «Око-3» для разведки начали применять российские военные
1 час назад
Новые модификации VTOL-беспилотников «Око-2» и «Око-3» для разведки начали применять российские военные

Разработка принадлежит специалистам НПЦ «Сварог»

Новости Военная техника НПЦ «Сварог»
Юлия Шелковенко
Россия вернулась в элиту мировой микроэлектроники спустя 45 лет
1 час назад
Россия вернулась в элиту мировой микроэлектроники спустя 45 лет

До конца 2026 года в стране освоят новый литограф на 130 нанометров

Новости Промышленность
Максим Борисов
Плавающую бронетехнику закроют раздвижным куполом от атак дронов
1 час назад
Плавающую бронетехнику закроют раздвижным куполом от атак дронов

«Маска» снижает заметность на воде и ослабляет атаки FPV-дронов

Новости Военная техника
Максим Борисов
Навигацию для МС-21 и «Суперджета» обеспечит Тамбов
1 час назад
Навигацию для МС-21 и «Суперджета» обеспечит Тамбов

Новый корпус завода «Электроприбор» зальют специальным виброизолированным фундаментом

Новости Авиация «Электроприбор»
Максим Борисов
Связист назвал проблему «Аргуса»: выдержит ли альтернатива Starlink стратосферный ветер
2 часа назад
Связист назвал проблему «Аргуса»: выдержит ли альтернатива Starlink стратосферный ветер

Нагрузки на огромной высоте — ключевой барьер для БПЛА «Аргус» перед испытаниями

Новости Авиация
Максим Борисов
Красноярск станет хабом для обслуживания Ил-114-300
2 часа назад
Красноярск станет хабом для обслуживания Ил-114-300

Краевые власти рассматривают закупку самолёта

Новости Авиация АО «Ил»
Максим Борисов